Viel Platz, viele Möglichkeiten: Zweifamilienhaus mit großem Garten in Hennef-Allner
Objektart
Adresse
Objektdaten
Informationen
Ausstattung
Details
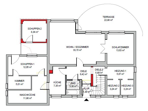
Dieses großzügige Zweifamilienhaus überrascht bereits beim ersten Eindruck: Hinter der eher zurückhaltenden Straßenansicht verbirgt sich, bedingt durch die Hanglage, ein echtes Raumwunder mit vielfältigen Nutzungsmöglichkeiten.
Ob klassisches Mehrgenerationenwohnen, Wohnen und Arbeiten unter einem Dach oder die Kombination aus Eigennutzung und Vermietung, die Immobilie bietet die nötige Flexibilität für unterschiedliche Lebenskonzepte. Die Räume sind gut geschnitten und schaffen eine angenehme Wohnatmosphäre.
Ein besonderes Highlight ist der großzügige, parkähnlich angelegte Garten, der viel Platz zur Erholung bietet und das Wohnen im Grünen ideal ergänzt.
Die Immobilie wurde fortlaufend instand gehalten: Die Heizungsanlage wurde im Jahr 2003 erneuert, die Fenster wurden überwiegend zwischen 1990 und 2000 ausgetauscht. Ergänzend zur Doppelgarage stehen mehrere Kellerräume sowie zusätzliche Abstellflächen im Spitzboden über der Garage und über dem Dachgeschoss zur Verfügung.
Die Badezimmer entsprechen überwiegend dem Baujahr und bieten eine solide Grundlage, sollten jedoch im Zuge einer Modernisierung an heutige Wohnansprüche angepasst werden.
Absolut ruhige, natur- und zentrumsnahe Wohnlage. Über den Horstmannsteg ist man fußläufig in gut 20 Minuten in der City. Die BAB ist ebenfalls nur wenige Fahrminuten entfernt. Die Bushaltestelle Allner-Zum Rosengarten (Linien 510 - Richtung Siegburg und 592 - Richtung Hennef) ist nur 2 Minuten entfernt. Allner selbst ist attraktiv durch den Kindergarten, die Pfarrkirche St. Josef und seinen Sport- und Spielplatz. Der rührige Heimat- und Verschönerungsverein Allner e.V. gestaltet das Dorfleben in vielfältiger Weise.
Hinweis zur Wohnfläche:
Die Wohnfläche beträgt laut ursprünglicher Baugenehmigung ca. 170 m², da das Dachgeschoss seinerzeit als Speicher ausgewiesen wurde. Tatsächlich wird das Dachgeschoss jedoch seit jeher als Wohnraum genutzt. Ein aktuelles Flächenaufmaß hat eine Gesamtwohnfläche von rund 217 m² ergeben. Für die offizielle Anerkennung dieser Fläche ist eine entsprechende Nutzungsänderung erforderlich.
Ansprechpartner
Telefax: 02242-869091
Mobil: 0170 46 23 272
verkauf@saure-immobilien.de
Energieausweis (Verbrauchsausweis)
262,39 kWh / (m²*a) Energieverbrauchskennwert
262,39 kWh / (m²*a) Energieverbrauchskennwert
262,39 kWh / (m²*a) Energieverbrauchskennwert
Weitere Informationen
| Wesentlicher Energieträger | Öl |
| Energieausweis Ausstelldatum | 29.06.2023 |
| Energieausweis gültig bis | 29.06.2033 |
| Energieausweis Jahrgang | ab dem 1.5.2014 |
| Energieausweis Wärmewert | 262.39 kWh / (m²*a) |
| Energieausweis Werteklasse | H |
| Energieausweis Baujahr | 1958 |
| Energieausweis Gebäudeart | Wohngebäude |
| Heizung | Zentralheizung |
| Befeuerung | Öl |
Ich bin damit einverstanden, dass mir Karten von Google angezeigt werden. Es gelten die Datenschutzbedingungen von Google (https://policies.google.com/privacy).
Ich bin einverstanden