Objektart
Adresse
Objektdaten
Informationen
Ausstattung
Details
Dieses charmante Wohnhaus im Hennefer Ortsteil Warth vereint den besonderen Charakter eines Altbaus mit vielseitigen Gestaltungsmöglichkeiten. Ursprünglich im Jahr 1910 erbaut und 1934 erweitert, steht die Immobilie auf einem ca. 257 m² großen Grundstück und bietet ausreichend Platz für die ganze Familie. Zwei Stellplätze befinden sich direkt neben dem Haus.
Die Immobilie überzeugt durch ihren individuellen Grundriss und den klassischen Altbau-Charme. Gleichzeitig eröffnet der teilweise renovierungsbedürftige Zustand viel Potenzial zur persönlichen Entfaltung und Umsetzung eigener Wohnideen.
Im Erdgeschoss wurde bereits mit umfassenden Maßnahmen begonnen: Die Fläche wurde entkernt und teilweise saniert, die Bäder modernisiert. Mit wenigen Handgriffen ist das Erdgeschoss bereits bezugsfertig. Hier befinden sich die Küche mit offenem Übergang in den Wohnbereich mit Zugang zur Terrasse, ein Schlafzimmer mit angrenzendem Duschbad, ein weiteres Zimmer (ideal als Büro) sowie ein Gäste-WC mit Dusche. Drei Fenster sind aktuell noch einfachverglast und sollten im Zuge weiterer Maßnahmen ausgetauscht werden.
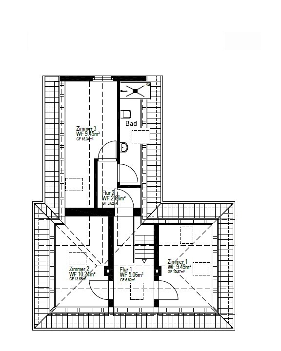
Das Obergeschoss bietet drei Zimmer und wurde bereits teilweise mit neuen Stromleitungen ausgestattet. Zusätzlich besteht hier die Möglichkeit, ein weiteres Badezimmer zu realisieren.
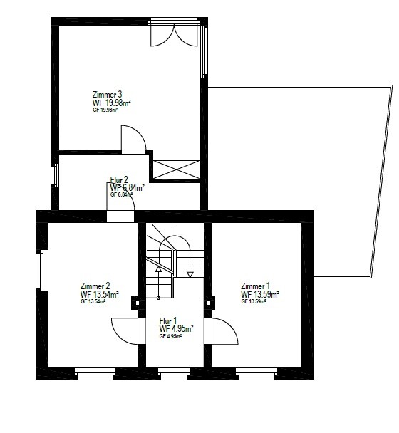
Im Dachgeschoss stehen ebenfalls drei Zimmer sowie ein Badezimmer zur Verfügung. Teilweise wurden hier bereits neue Dachfenster eingebaut.
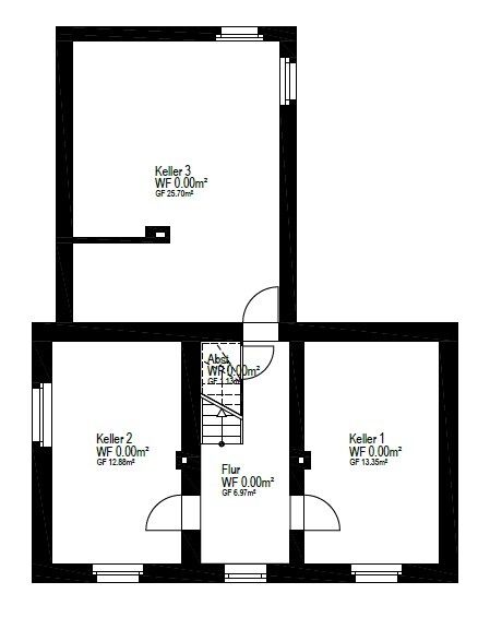
Das Haus ist vollständig unterkellert und wird über eine Gasheizung beheizt. Zusätzlich wurden bereits zukunftsorientierte Vorbereitungen getroffen: Leerrohre verlaufen durch alle Etagen und ermöglichen die spätere Installation einer Photovoltaikanlage sowie einer Wärmepumpe.
Mit seinem besonderen Grundriss, dem klassischen Altbau-Charme und viel Platz für die ganze Familie eröffnet diese Immobilie zahlreiche Gestaltungsmöglichkeiten. Teilweise sanierungsbedürftig, aber genau das macht den Reiz aus: Hier können Sie Ihre eigenen Wohnträume verwirklichen.
Die Immobilie befindet sich in zentraler und gut angebundener Lage von Hennef-Warth. Die Umgebung ist geprägt von einer gewachsenen Wohnstruktur mit guter Infrastruktur. Einkaufsmöglichkeiten für den täglichen Bedarf, Restaurants sowie Cafés sind bequem erreichbar. Die Nähe zur Innenstadt sorgt für kurze Wege, während umliegende Grünflächen und Naherholungsgebiete attraktive Freizeitmöglichkeiten bieten. Eine gute Verkehrsanbindung über Straße und Schiene gewährleistet eine schnelle Erreichbarkeit der umliegenden Städte wie Bonn und Siegburg.
Ansprechpartner
Telefax: 02242-869091
Mobil: 0170 4623271
verkauf@saure-immobilien.de
Energieausweis (Bedarfsausweis)
223 kWh / (m²*a) Endenergiebedarf
223 kWh / (m²*a) Endenergiebedarf
223 kWh / (m²*a) Endenergiebedarf
Weitere Informationen
| Wesentlicher Energieträger | Gas |
| Energieausweis Jahrgang | ab dem 1.5.2014 |
| Energieausweis Wärmewert | 223 kWh / (m²*a) |
| Energieausweis Werteklasse | G |
| Energieausweis Baujahr | 1910 |
| Energieausweis Gebäudeart | Wohngebäude |
| Heizung | Zentralheizung |
| Befeuerung | Gas |
Ich bin damit einverstanden, dass mir Karten von Google angezeigt werden. Es gelten die Datenschutzbedingungen von Google (https://policies.google.com/privacy).
Ich bin einverstanden